Veřejné stavby

Hala H40

Autorský tým:

Jakub Fišer

Projekční tým:

Alena Sedláková, Jan Holub, Ondřej Smetana

Fotografie:

AI photography

Projekt:

2017

Realizace:

2020

Popis projektu

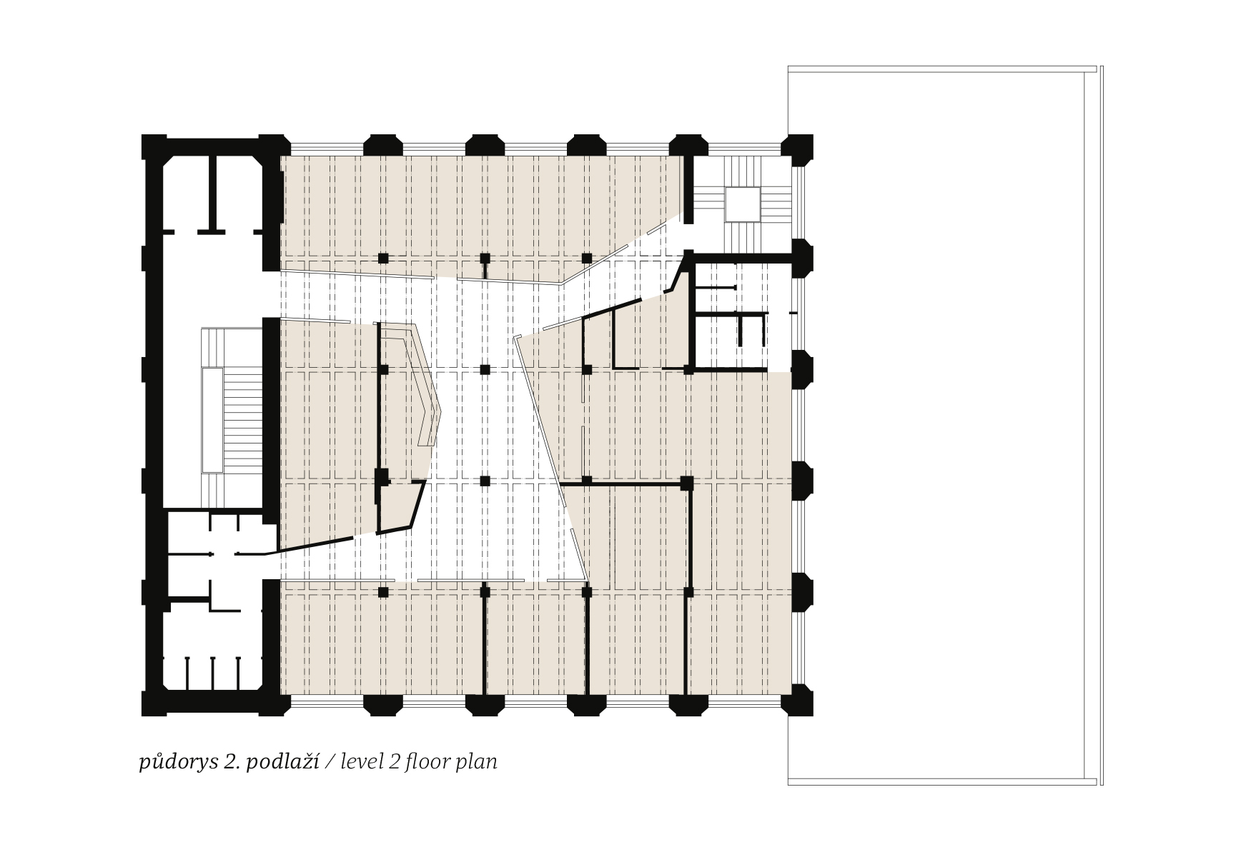
Hala 40 vznikla jako ústřední chladírna areálu při modernizaci bývalých jatek ve 20. letech 20. století. Tomu odpovídá i její od převažujícího charakteru zástavby odlišná podoba: jedná se o vícepodlažní stavbu čtvercového půdorysu, realizovanou jako železobetonový skelet. S ohledem na svůj účel byl objekt původně také realizován s minimem okenních otvorů, okna byla pouze ve schodišťové sekci a do provozního a sociálního zázemí.
V 90. letech 20. století proběhla přestavba na obchodní dům s nábytkem, do fasád byly prolomeny nové velké okenní otvory, interiér byl upraven pro daný účel technologiemi větrání a vytápění, jejichž rozvody byly zakryty SDK a minerálními kazetovými podhledy, podlahy byly opatřeny novou nášlapnou vrstvou z keramické dlažby, stropy byly probourány dalšími spojovacími schodišti a výtahem. V podkroví vznikla vestavba administrativního zázemí. Provedení této přestavby bylo tedy poměrně radikální, přičemž odpovídalo průměrnému dobovému stavebnímu standardu a nebylo k objektu příliš citlivé. Po ukončení provozu objekt posledních cca deset let chátral, resp. byl využíván příležitostně k jednorázovým akcím. Z původního domu tak zbylo naprosté minimum, vlastně pouze konstrukční podstata – žlb skelet v systému Hennebique a částečně prostor hlavního schodiště.
Z hlediska památkové hodnoty stavby a její ochrany (jedná se přes uvedené o kulturní památku!) jsme se proto soustředili na srozumitelné vymezení dochované původní stavební podstaty. Základním principem se stalo obnovení původní struktury stavby a jejího hmotového a prostorového působení v dotčených částech interiéru od nepůvodních, diskutabilních a technicky dožilých vestaveb, vzniklých při předchozí přestavbě před cca 25ti lety.
Nosný železobetonový skelet byl očištěn a je sanován jen ve staticky nezbytně nutném rozsahu tak, aby zůstal patrný způsob dobové technologie jeho provádění včetně patiny, struktury a barevnosti původního betonu, otisků jeho bednění, jeho nepravidelností a nehomogennosti.
Také schodiště bylo zbaveno nevhodných povrchových úprav, SDK podhledů, dodatečných dělících příček apod, scelený prostor byl nově upraven jemnou vápennou omítkou. Zábradlí bylo repasováno.
Probarvený „cihlový“ štuk fasády, který byl domu navrácen na základě sond původní barevnosti (ve hmotě cihlovým práškem probarvená vápenná omítka), je použit i na vnitřních stranách obvodových stěn jako další prvek, sloužící ke sjednocení a zpřehlednění původního stavebního řešení.
Určitá „hrubost“ takto naturálně prezentovaných či suplovaných povrchů původních je vyvažována materiálovým řešením vlastních vestaveb, které jsou činěny jako lehké a „hladké“ tak, aby původní a vestavované bylo jasně odděleno při zachování harmonického působení celku. Nové dělící příčky jsou v maximální míře transparentní tak, aby celistvý dojem z prostoru byl novou vestavbou co nejméně limitován a jeho celková dimenze zůstala i s nimi čitelná, či alespoň tušená.
Aktuální etapa rekonstrukce zahrnuje společné prostory stavby, její 2. a 3. podlaží a fasádu. Uvedená patra jsou nově využívána pro Komunitní centrum – volnočasové aktivity pro děti, dospívající a seniory (2NP) a pro Podnikatelský inkubátor Art and Digital lab: prostory pro práci s novými technologiemi, virtuální realita, 3D tisk, fotoateliér apod. (3NP).
Pokud investor bude mít zajištěné financování (dosavadní způsob financování byl ze Strukturálních a investičních fondů EU v rámci OP Praha – pól růstu ČR za přispění hl. m. Prahy jakožto vlastníka budovy), vznikne v budoucnu ještě v přízemí kavárna. Dřívější půdní vestavba slouží nadále jako administrativní zázemí nových aktivit a nebyla součástí úprav.