Architektonické soutěže Veřejné stavby

Kampus Cihelna

Autorský tým:

Jan Aulík, David Zalabák, Boleslav Pazdziora, Martina Formánková

Developer/investor:

Město Roztoky

Vizualizace:

Monolot

soutěž

2025

Popis projektu

3. místo v otevřené anonymní soutěži

Hlavním cílem naší práce bylo nalézt koncept školního kampusu, který by vhodně doplnil stávající školu, integroval se citlivě do lokality a svým prostorovým uspořádáním usnadňoval orientaci z vnějšího i vnitřního prostředí.
Základní funkční jednotka školy – klastr je i určujícím urbanistickým modulem pro strukturu čtyř stejných dvoupodlažních hmot, jejichž propojením vzniká základní zastavovací struktura školy. Propojení je navrženo formou prosklených krčků, ve kterých jsou kromě páteřních komunikací i další doplňkové funkce školy.
Architektonický výraz kampusu je definován měřítkem modulu 4 klastrů a zvolenou technologií dřevostavby která se projevuje i ve fasádách.
Část reliktů cihelny zapojujeme do našeho návrhu jak v exteriéru tak i v interiéru a oválný tvar pavilonu jídelny má symbolicky obdobný obrys jako bývalá cihelna.
Střechy všech čtyřech objektů jsou využity různým způsobem – školní zahrada, biosolární střecha a hřiště.
Architektonického a provozního řešení
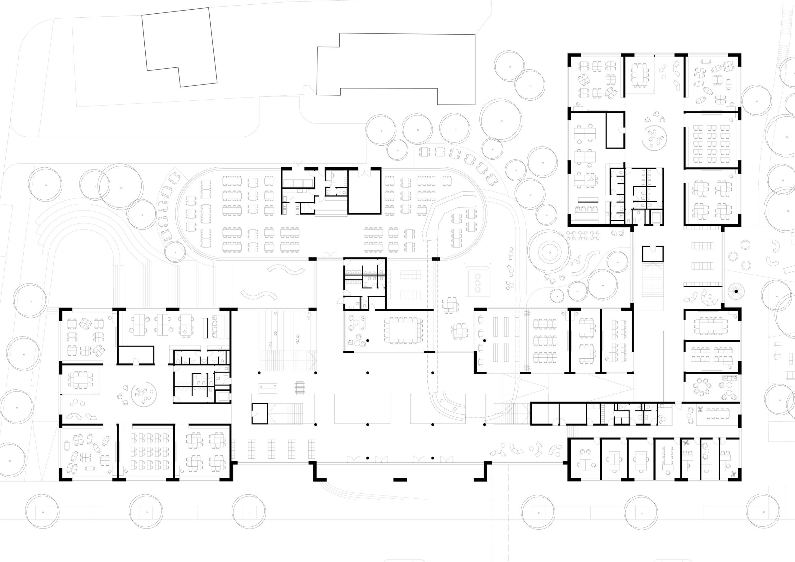
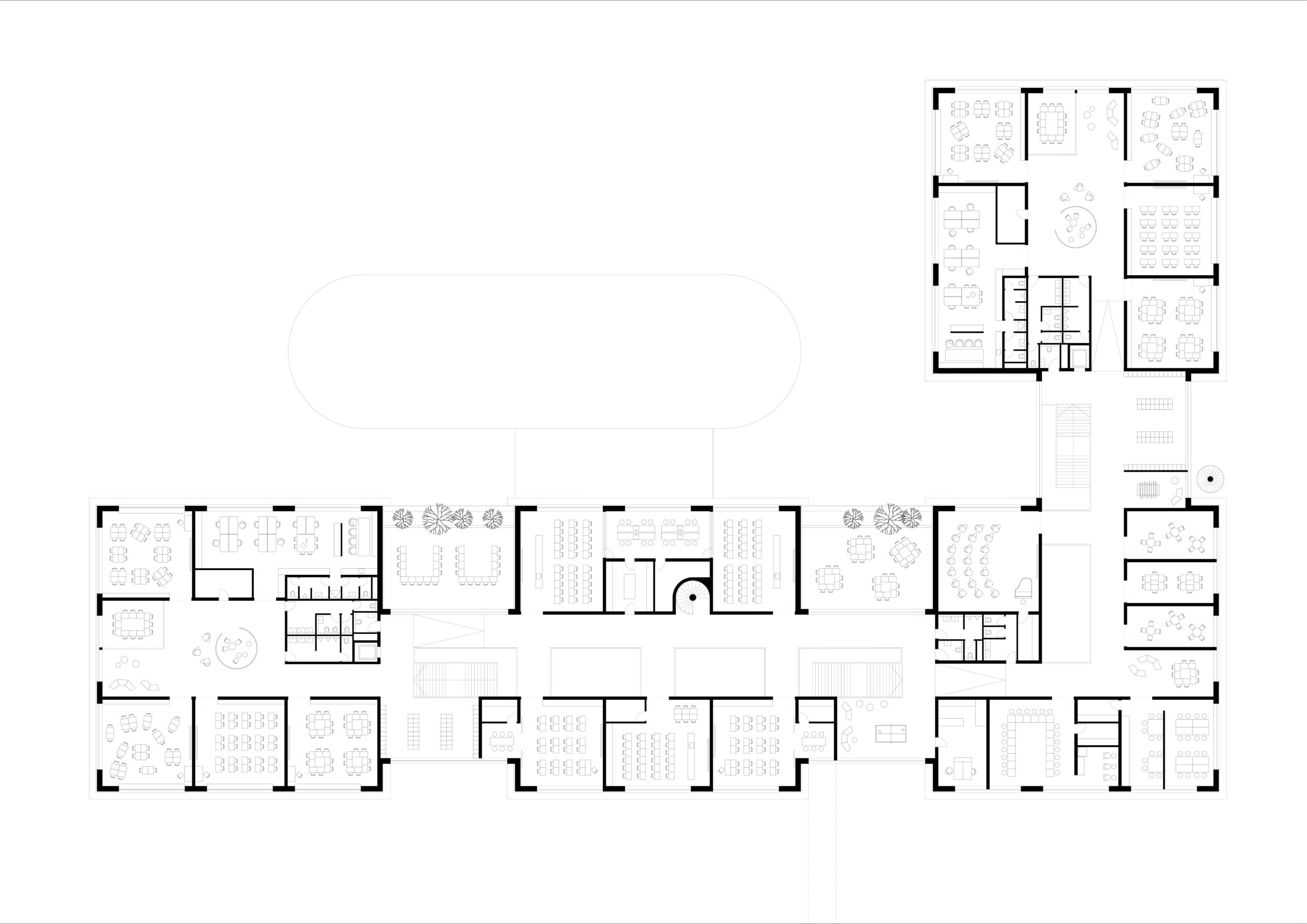
Areál Kampusu Cihelna jsme uspořádali do ortogonální sestavy čtyř objemově podobných dvoupodlažních objektů čtvercovitého půdorysu tvořících písmeno L a pro přehlednost je očíslovali 1. – 4.
První od vjezdu do areálu je objekt 1. s částečně zapuštěným třetím podlažím do terénu, kde je aula, bufet, technické zázemí školy a ve vyšších podlažích potom klastry II. druhého stupně ZŠ. V objektu 2. je navržena v přízemí vstupní hala a v druhém podlaží odborné učebny. V objektu 3. je v přízemí vedení školy a v druhém podlaží odborné učebny. V objektu 4. jsou v obou podlažích umístěny klastry gymnázia. Všechny čtyři objekty jsou spojeny prosklenými krčky a doplněné samostatným oválným objektem jídelny, její oválný tvar je určitou reminiscencí staré cihelny.
Od navržené struktury rozčleněné do menšího měřítka přiměřeného pro okolní lokalitu rodinných domů očekáváme snadnou orientaci v celém školním kampusu i ve vnitřních prostorách školy. Kampus by podle našeho názoru neměl být jednou mohutnou hmotou ale spíše přehlednou sestavou menších pavilonů. Pavilony jsou propojeny prosklenými krčky, které kromě komunikací obsahují i doplňkové provozy (šatny, herní zóny apod.). Dvoupodlažní řešení objektů kampusu jsme kromě kompozičních důvodů zvolili i z důsledku volby stavebně technického řešení jako dřevostavby (únikové cesty, náklady). Půdorysné rozměry jednotlivých objektů – pavilonů jsou odvozeny od velikost základních funkčních jednotek školy – klastrů, které nastavují základní měřítko nové školy a do tohoto stejném modulu jsou navrženy i další základní funkce školy – odborné učebny, gymnázium, vedení školy.
K technické památce – reliktu bývalé cihelny jsme přistoupili tak, že míra jejího zachování by neměla snížit racionalitu konceptu školy ve smyslu provozu a významně zvýšených nákladů stavby. Ponechali jsme tedy a navrhujeme konzervovat torza části důležitých konstrukcí v exteriéru a další části jsme integrovali do interiérů školy – školní jídelny a vstupní haly. Symbolicky jsme respekt k technické památce vyjádřili i přenesením jejího oválného půdorysu do tvaru objektu jídelny.
Jednotlivé objekty klastrů jsou vůči sobě výškově posunuté v závislosti na niveletě stoupající přístupové komunikace kampusu, uvnitř struktury klastrů výškové rozdíly překonávají krátké rampy.
Vstup do školy je navržen v těžišti budovy a pohyb po budově se přehledně odvíjí podle delší osy zastavovacího schématu ve tvaru L, ze které jsou přístupné kromě základních funkcí školy – klastrů II. stupně a gymnázia i další doplňkové prostory – školní klub, knihovna, studovna, bufet, jídelna, šatny, vedení školy, aula, bufet.
Sál auly v částečně zapuštěném podlaží u vstupu do kampusu má kromě přístupu ze školy podél pobytových schodů ještě samostatný vstup z exteriéru pro veřejnost. V tomto podlaží jsme navrhli i bufet a dále sklady a technické vybavení budovy. Na aulu v exteriéru navazují pobytové plochy landscapu a malý amfiteátr.
Ploché střechy všech čtyř objektů kampusu a spojovacích krčků jsou využívány různým způsobem. Objekt 1. a objekt 4. mají navrženy biosolární střechy, objekt 2. pěstební zahradu a objekt 3. venkovní hřiště přístupné po nezávislém exteriérovém schodišti. Střešní hřiště jsme navrhli i s ohledem na relativně malý pozemek kampusu.
Součástí návrhu kampusu je i bytový objekt v jihozápadní části pozemku, se kterým souvisí i nezbytná úprava ulice Za cihelnou.
Landscape
Koncepční řešení vegetačních úprav kampusu Cihelna vychází z přirozené návaznosti na architektonický výraz areálu a klade důraz na harmonické propojení exteriéru s interiérem. Zeleň je zde chápána nejen jako estetický prvek, ale i jako funkční součást prostředí, která zajišťuje pohodlí, mikroklimatickou stabilitu a podporuje přirozený pohyb uživatelů v prostoru. Vegetační prvky jsou citlivě rozvrženy tak, aby podtrhovaly charakter jednotlivých částí kampusu, a zároveň vytvářely plynulé přechody mezi jednotlivými funkčními zónami.
Navržené výsadby vycházejí převážně z domácích a stanovištně odpovídajících druhů, s důrazem na jejich celoroční proměnlivost. Trvalkové a keřové záhony doplňují parter a přispívají k jeho vizuální vrstvenosti, zatímco rozvolněné trávníkové plochy zajišťují volnost pohybu, optickou lehkost a příležitost k neformálnímu pobytu. Významným prvkem jsou také vegetační střechy, které přispívají ke zvýšení ekologické hodnoty areálu, zadržování srážkových vod a celkové udržitelnosti řešení.
Celková koncepce reflektuje nejnovější trendy krajinářské architektury a směřuje k nadčasové kvalitě prostředí. Exteriér se stává přirozenou extenzí interiéru – přilehlé pobytové prostory u objektů tvoří plynulý přechod mezi vnitřním a vnějším prostředím. Tyto zóny podporují aktivní i klidový pobyt, vytvářejí příjemné mikroklima a posilují uživatelský komfort kampusu v každém ročním období.
Konstrukční řešení
V době zrychlující se klimatické změny a nutnosti snižování emisí uhlíku se stává otázka udržitelnosti klíčovým tématem současné architektury. Jedním z nejinspirativnějších materiálů, který odpovídá na tuto výzvu, je CLT (Cross-Laminated Timber) – křížem lepené dřevo. Tento inovativní masivní dřevěný panelový systém přináší nejen výrazné ekologické benefity, ale také estetické a konstrukční kvality, které rozšiřují možnosti soudobého navrhování.
Svislé nosné konstrukce jsou proto vyhotoveny:
– z masivních CLT stěn (vnitřní nosné stěny sloužící současně i jako dělící stěny) – zde je tato technologie zvolena s ohledem na rychlost výstavby, umožnění přiznání pohledového dřeva, a především jako udržitelná stavební alternativa s nízkou uhlíkovou stopou,
– a rámových dřevěných konstrukcí (obvodový panel) – zde je tato technologie zvolena především s ohledem na kompletní prefabrikaci a urychlení montáže (doveze se kompletní hotový panel včetně finální fasády, fasádních výplní apod.).
Vodorovné nosné konstrukce jsou tvořeny spřažením masivních CLT panelů položených na stropní trámy 160/240 s ŽB deskou. Toto řešení nabízí požadovaný estetický výsledek pohledového dřeva, výborné statické, požárně dělící a perfektní akustické vlastnosti kladené na školní provoz.
Základové konstrukce budou tvořeny plošnou betonovou deskou, která bude založena do nosné zeminy v závislosti na inženýrsko-geologickém průzkumu.
Požárně bezpečnostní řešení
Stavba bude navržena tak, že zachová nosnost a stabilitu konstrukci po požadovanou dobu, omezí rozvoj a šíření ohně a kouře ve stavbě, omezí šíření požáru na sousední stavby, umožní evakuaci osob a zvířat a umožní bezpečný zásah jednotek požární ochrany.
Požárně bezpečnostní řešení vychází z nových možností řešení dřevostaveb v ČR v souvislosti s využitím Eurokódů a možností inženýrského přístupu v oblasti požární bezpečnosti.
Všechny svislé i vodorovné konstrukce jsou druhu DP3. Dle čl. 7.2.8 ČSN 73 0802 se jedná o hořlavý konstrukční systém typu DP2 nebo DP3.
Za přístupovou komunikaci se považuje alespoň jednopruhová silniční komunikace o šířce vozovky minimálně 3,0 m, která končí nejvýše 20 m od posuzovaného objektu. Pokud je komunikace jednopruhová, musí být projektovým řešením zajištěn zákaz zastavení a parkování vozidel. U vícepruhových komunikací musí být tento zákaz zajištěn alespoň v jednom jízdním pruhu. Komunikace musí umožnit příjezd požárních vozidel k objektu. Musí být zpevněna tak, aby umožnila alespoň jednorázové použití vozidlem s největším zatížením na jednu nápravu nejméně 100 kN.
Přesné požadavky včetně rozdělení do požárních úseků budou stanoveny v dalším stupni projektové dokumentace.
Technologické řešení
Energetická koncepce vychází z vysokého komfortu a zdravého užívání budovy, vysoké energetické účinnosti a využití alternativních zdrojů energie.
Je navrženo pasivní stínění pomocí předsazených říms nad okny, které zároveň slouží pro mytí oken a údržbu fasády. Dalším prvkem stínění jsou textilní screenové rolety umístěné nad okenními otvory.
Vytápění objektu a ohřev teplé vody bude zajištěn pomocí tepelného čerpadla země – voda, případně bude navržen doplňkový zdroj tepla. K celkové energetické bilanci přispívají i FVE panely umístěné na střeše objektu.
Pro chlazení budovy bude využita soustava systému tepelných čerpadel a zároveň předchlazený čerstvý vzduch vedený zemním kanálem. Komplexní systém chlazení bude koncipován v dalších stupních na základě podrobnějších podkladů.
Budova svým řešením fasády, velikostí a četností otevíravých prvků podporuje efektivní přirozené větrání. Větrání je zajištěno systémem s rekuperací vzduchu, zároveň je umožněné přirozené větrání i pro noční režim předchlazování budovy.
Dopravní řešení
Dopravní koncepce využívá stávajícího napojení školního kampusu. Budova školy bude přístupná z ulice Kantorova pěší i cyklo dopravu. Rovněž v ulici Kantorova navrhujeme nová podélná stání prokládaná vzrostlými stromy, pro zlepšení tepelného komfortu a snížení efektu tepelných ostrovů. Část z těchto stání bude vyčleněna jako „kiss & ride“.
Zásobování budovy jídelny bude zajištěno pomocí nové komunikace, napojené kolmo na ulici Přemyslovskou. V rámci řešeného území rovněž návrh počítá s doplněním parkovacích stání dle požadovaného počtu podél stávajících komunikací.
Objekt pro bydlení bude dopravně napojen ve dvou úrovních – stávající komunikací z ulice Za Cihelnou a protažením komunikace Kantorova. Parkovací stání pro bydlení jsou uvažována v suterénu objektu přístupné z ulice Kantorova.